
WLS無軸螺旋輸送機
一、概述:
無軸螺旋輸送機是我公司根據建材、化工、環保、電力、醫藥、冶金、食品等行業在采用,LS型、GX型螺旋輸送機輸送磨琢性大、粘性較大,易結塊,易纏繞物料時形成物料堵塞,吊軸承損壞使螺旋機不能正常工作的實際情況下而研發制造的一種新型WLS型螺旋輸送機。wls型無軸螺旋輸送機適用于連續均勻輸送較松散的、有粘性的、易纏繞物料,輸送物料溫度Z高可達100℃,Z大傾角小于45°。
湖州亞杭環保機械設備有限公司無軸螺旋輸送機主要規格有:WLS200、WLS250、WLS300、WLS350、WLS400、WLS500

單無軸螺旋輸送機

雙無軸螺旋輸送機

多無軸螺旋輸送機
二、無軸螺旋輸送機的特點
無軸螺旋輸送機與傳統有軸螺旋輸送機相比,由于采用了無中心軸、吊軸承設計,利用具有一定柔性的整體鋼制螺旋推送物料,因而具有以下突出優點:
1、螺旋具有超強耐磨性和耐用性,使用壽命長。
2、抗纏繞性強:無中心軸干擾,對于輸送帶狀、易纏繞物料有特殊的優越性,防止阻塞引起事故。
3、環保性能好:采用全封閉輸送和易清洗的螺旋表面,可以保證環境衛生和所輸送物料不受污染、不泄漏。
4、扭距大、能耗低:由于螺旋無軸、物料不易堵塞,因而可以較低速度運轉,平穩傳動,降低能耗。
5、輸送量大:輸送量是相同直徑傳統有軸輸送機的1.5倍,Z大達40m3/h。輸送距離長,可達25米,并可以根據用戶需要,采用多級串聯式安裝,超長距離輸送物料。
6、結構緊湊,操作簡便,經濟耐用,維護量極少,維護費用低。
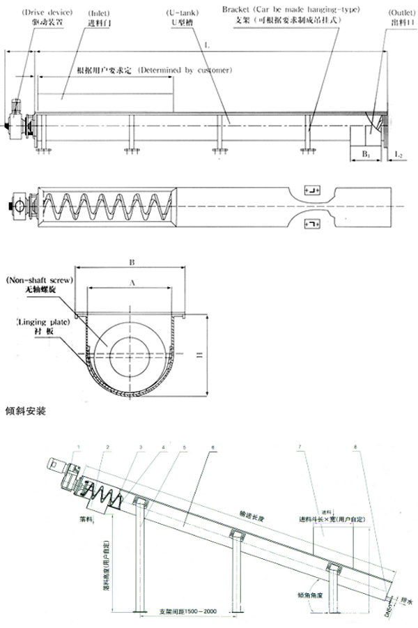
三、無軸螺旋輸送機的結構
WLS無軸螺旋輸送機產品主要由驅動裝置、頭部裝配、機殼、無軸螺旋體、槽體襯板、進料口、出料口、機蓋(需要時)、底座等組成。
1、驅動裝置:采用擺線針輪輪減速機或軸裝式硬齒面齒輪減速機,設計時應盡可能將驅動裝置設在出料口端,使螺旋體在運轉時處在受拉狀態。
2、頭部裝配有推力軸承,可承受輸送物料時產生的軸向力。
3、機殼:機殼為U型或O 型,上部加防雨型機蓋,材質有不銹鋼或碳鋼或玻璃鋼。
4、無軸螺旋體:材質為不銹鋼或碳鋼。
5、槽體襯板:材質為耐磨的塑料板或橡膠板或鑄石板等。
6、進、出料口:有方形和圓形兩種,一般進、出料口形式由用戶決定。

四、無軸螺旋輸送機的主要技術參數
